Tanzwerk


Aufgabe

Das Staatstheater Braunschweig plant eine Erweiterung seiner Tanzsparte auf dem Areal zwischen Theaterwall und Umflutgraben in unmittelbarer Nachbarschaft zum Großen Haus des Theaters. Angrenzende Grundstücke werden von der Stadt Braunschweig erworben und für die Erweiterung zur Verfügung gestellt. Bisher fehlt dem Ballett ein vielseitig bespielbarer Experimentierraum, in dem kleine Stücke mit wenigen Akteuren ohne aufwendige Kulissen in unmittelbarem Kontakt mit dem Publikum entwickelt werden können.

Umsetzung

Das Ausreizen physischer Grenzen eines Körpers beim Tanz haben wir mit unserem Entwurf als Konzept gewählt. Wir bringen die Architektur an das scheinbar unmögliche und vermitteln mit dem Entwurf eine Form der Illusion und des Schwebens.
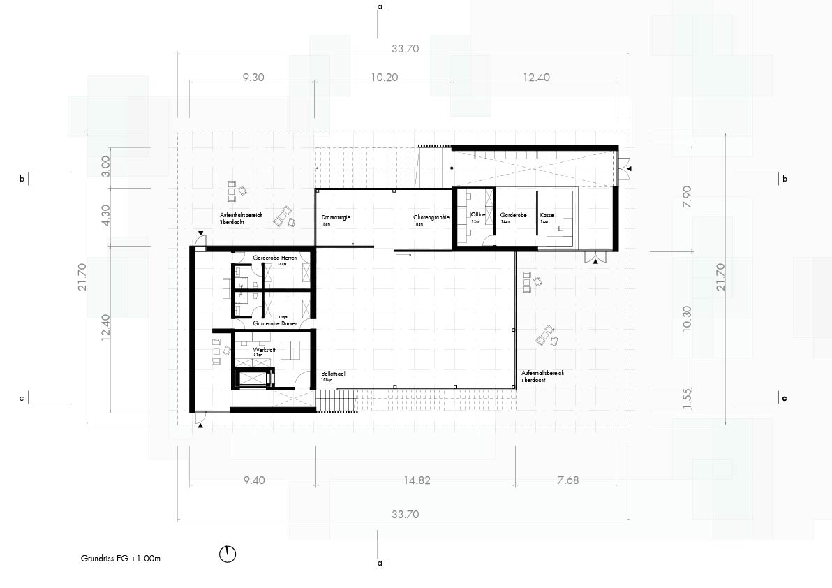
Zwei Kerne spannen im Erdgeschoss einen Raum auf, welcher den Ballettsaal beinhaltet. Entlang dieses Raumes gelangt man über zwei Treppen in das Obergeschoss, welches als geschlossene Kiste die Werkstattbühne beinhaltet. In einer Kreisbewegung werden Zuschauer sowie Tänzer in den Raum geleitet, in dem sie aufeinandertreffen und auf eine experimentelle, vielfältige Art Stücke inszenieren. Dabei wird im Obergeschoss nur ein eingeschränkter Blick nach außen zugelassen, während das Erdgeschoss offen gestaltet wird um den umliegenden Park mit einzubinden.
Das Projekt entstand in Zusammenarbeit mit Fynn Kleen.

Ort
Image



  • Image
  • Image
  • Image
  • Image
  • Image




Modellfotos




  • Image
  • Image
  • Image
  • Image
  • Image
  • Image
  • Image